
| Address | Category | Builder Name |
| DLF Phase 4, Gurugram | Residential | DLF INDIA |
| Status | Possession by | RERA Details |
| Under Construction |
31-Dec 2025 |
GGM/539/271/2022/14 DATED 14.03.2022 |
| Total Project Area | Starting Price | Key Location |
| 1.625 Acre | On Request | Near Galleria Market, Gurgaon |
| Number of Towers | Structure of Property | Total Units |
| 15 | 4 | 60 |
| Configuration of Units Available | Size Onward | Pin Code |
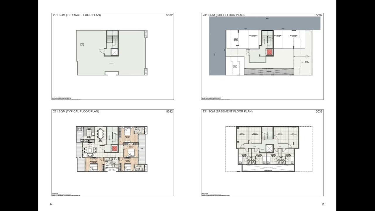
| 4 BHK Independent Floor | 350 Sq.yds | 122009 |
Well-designed 4 BHK independent floors that combine contemporary living with daily convenience are available at DLF Amaltas Drive. This property, which was created by DLF Group, has first-rate features including a swimming pool, clubhouse, yoga and meditation area, and children's play area—all inside a safe, well-planned neighborhood.
The project, which is situated in Gurgaon's DLF Phase 4, provides good access to important locations including Indira Gandhi International Airport, New Delhi Railway Station, MG Road, Udyog Vihar, Gurgaon Sector 29 (Food and Nightlife Hub), and many more. DLF Amaltas Drive provides a convenient and lively living with everything you need only a few minutes away. DLF Amaltas Drive stands out as a value-driven option in one of Gurgaon's most promising neighborhoods, whether you're searching for your first house or a wise investment.
Kid's Play Area
Jogging Track
Badminton Court
Cycling Track
Yoga Aerobics
Spa and Jacuzzi
Swimming Pool
Auditorium
| Unit Type | Size | Starting Price* |
| 4 BHK | 350 Sq. Yds. | On Request |
DLF Amaltas Drive starting price is on request, offering luxury living with expansive spaces and top-tier amenities in DLF Phase 4, Gurgaon.
DLF Amaltas Drive images are available here at New India Real Estate in the gallery section. Download the pictures from the picture gallery for a more visual understanding of the project.
DLF Amaltas Drive maintenance cost & fee depend on the developer as the maintenance quality is good for this project.
DLF Amaltas Drive by DLF group is a premium project that offers world class amenities and facilities to the residents.
DLF Amaltas Drive contact number is available on request only. You can get in touch with us at 9811771043 to fulfill your project related queries and find the contact details of the developer.
As per the recent surveys DLF Amaltas Drive offers the premium facilities to the residents so there are good ratings given by the customers.
Yes, the rental is available in DLF Amaltas Drive, connect with us for the rent related queries and charges for the same.
DLF Amaltas Drive is located in DLF City Phase 4, Gurgaon, Haryana. DLF Amaltas Drive by DLF group is located at a highly sought after location for the people who love a good neighbourhood and live a peaceful life. One can follow the DLF Amaltas Drive location map to reach the site.
DLF Amaltas Drive offers 4 BHK independent floors, with the starting size at 190 sq. yds. These spacious apartments come in various configurations and sizes, as outlined in the DLF Amaltas Drive Floor Plan. For more information, call us today or fill out a query form on our website.
Download here at New India Real Estate DLF Amaltas Drive brochure PDF format for the detailed information about the project.
At DLF, we take great pride in our steadfast commitment to integrity in customer relations and quality assurance. For over 78 years, our primary goal has been to provide outstanding real estate development, management, and investment services.
Established in 1946 by Chaudhary Raghvendra Singh, DLF started its journey by developing 22 urban colonies in Delhi. In 1985, the company ventured into the uncharted territory of Gurugram, creating remarkable living and work environments for India’s rising global workforce. Today, DLF stands as India’s largest publicly traded real estate firm, with residential, commercial, and retail properties across 15 states and 24 cities.
Our varied sectors are a testament to our commitment to meet India's changing demands. Nevertheless, our true strength lies in our employees, customers, stakeholders, and shareholders. We focus on pioneering innovation through empowerment and positivity, laying the groundwork for India’s future while honoring the legacy of our history.
The information provided on this website is for general informational purposes only and does not constitute an offer to provide any services. Prices listed are subject to change without notice, and the availability of properties cannot be guaranteed. Images used are for illustrative purposes only. This website represents an authorized marketing partner. We may share data with RERA-registered companies for further processing, but no information will be shared with any third-party agencies. Updates may also be sent to the registered mobile number or email address.
DLF Amaltas Drive: Promoted by New India Real Estate - Authorized Affiliate Channel Partner

DLF Phase 4, Gurugram
Location: Sector 77, Gurugram
Property: Residential
Typology: 4 BHK Apartments
Property Type: Luxury Appartment
View Detail
Location: Sector 76-77, Gurugram
Property: Residential
Typology: 4 BHK Apartment & Penthouses
Property Type: Premium Apartment
View Detail
Location: Sector 76-77, Gurugram
Property: Residential
Typology: 4 BHK Apartments
Property Type: Luxury Appartment
View Detail
Location: DLF Phase 4, Gurugram
Property: Residential
Typology: 4 BHK Apartments
Property Type: Premium Apartment
View Detail
Location: Sector 54, Gurugram
Property: Residential
Typology: 2, 3 & 4 BHK Apartments
Property Type: Premium Apartment
View Detail
Location: DLF City Phase I, II & III, Gurugram
Property: Residential
Typology: 4 BHK Independent Floor
Property Type: Premium Apartment
View Detail
Location: Sector 93, Gurugram
Property: Residential
Typology: 3 BHK Independent Floor
Property Type: Builder Floor
View Detail
Location: Sector 2, Gwal Pahari, Gurugram
Property: Residential
Typology: 4 BHK Apartments
Property Type: Luxury Appartment
View Detail
Location: Gwal Pahari, Gurugram
Property: Residential
Typology: 4 BHK + S Luxury Apartments
Property Type: Luxury Appartment
View Detail
Location: Sector 59, Gurugram
Property: Residential
Typology: 2 & 3 BHK
Property Type: Premium Apartment
View Detail
Talk to our experts or Browse through more properties.
Toll Free Customer Care
Need Live Support?
L-29, First Floor, Connaught Circus, Block L, Connaught Place, New Delhi - 110001
Copyright © 2025 New India Real Estate. All Rights Reserved | Term & Condition | Privacy Policy | Disclaimer